白酒立式裝盒機裝盒構設計含設計圖非常詳細

立式裝盒機,采用盒子站立的形式開盒、裝盒及封盒。主要用于大容器產品(如白酒、葡萄酒等)以及散裝顆粒或者粉末產品裝盒,常與自動稱重裝置配套使用。盒子輸送鏈道是自動裝盒機輸送盒子的機構,立式裝盒機的關鍵機構之一,通過鏈道把盒子送到各功能機構,完成各自的功能后,把包裝好的盒子送出。
本文介紹和分析了立式裝盒機上一種可調盒間距的鏈道設計方案。通過設計示意對可調盒夾間距鏈道設計作了詳細說明,在一定的范圍內對盒間距進行調節,以適應盒子尺寸的變化。其原理借鑒了臥式裝盒機可調動鏈條。
立式裝盒機實拍圖片及視頻,請查看我司“ 裝盒機案例 ”
1包裝物的盒子及裝盒機輸送鏈的特點
1.1 自鎖底式盒子的特點
自動鎖底式酒盒是立式裝盒機采用的包裝盒之一。在成型時只要張開原來疊平的盒身,盒子自動成型,盒底能自動地連成鎖底,消費者打開盒子是很容易將盒子拉開撕裂,有效防止再次利用,達到防偽目的。自動鎖底式紙盒見圖1、圖2。

圖1 盒子展開圖

圖2 盒子底部連接成型
1.2 開盒成形與盒子的輸送過程
輸送鏈道為回轉型,開盒成形機構將折疊的盒子拉開成型后,放入輸送鏈道的盒夾內,輸送鏈道將底部成形的盒子送到折蓋機構、裝瓶區、套瓶口機構、封蓋機構等完成包裝。
開盒機構將疊平的紙盒通過吸盤拉開一定的角度放入盒夾下面的墊軌上,放入時盒夾張開一定的角度,有利于盒子順利進入盒夾,進入后盒夾平行將盒子夾持 住,使得盒子自鎖封底。封底后 盒子前行,鏈道上部有折側蓋機構,使盒子上部四面的蓋子充分張開,有利于瓶子裝入盒內,裝瓶后,盒子在鏈道盒夾的夾持下前行,經折側蓋機構打開側蓋,套瓶 口機構將有圓孔的蓋子下壓,套在瓶口上,對瓶子起到穩定作用,盒子繼續前行,折蓋機構和導桿作用使兩側蓋合住,外蓋經封蓋機構折蓋并將蓋子壓入,完成封裝。
1.3 盒子輸送鏈設計要求
輸送鏈上盒夾之間的距離要具有可調性"由于市場需求多樣化,為適應市場變化,產品包裝隨之變化,特別是包裝外形尺寸變化千差萬別,對包裝機械的適應性提出更多要求。鏈道上盒夾的設計應適應盒子尺寸變化,盒夾間距的調整方式的設計是輸送鏈的關鍵機構。
2立式裝盒機盒子輸送鏈道組成與作用
2.1 立式裝盒機輸送鏈道組成

圖3 輸送鏈道組成
1-主驅動 2-主傳動機構 3-傳送鏈條4-盒夾( 推板) 5- 被傳動機構 6- 機架總成
輸送鏈道主要由驅動機構、 股鏈條、多組盒夾、開上蓋機構、折蓋機構、套瓶口機構、封蓋機構及機架等組成,如見圖3所示。上、中、下三條鏈組成立式鏈道,鏈條導槽起到托鏈作用。盒夾由前擋板和后擋板組成,前擋板用螺栓固定在上鏈條和下鏈條上,擋板螺栓固定在中間鏈條上,前擋板和后擋板距離可調,適應不同寬度的盒子,盒夾之間有一定距離, 盒子放入盒夾內,在鏈條的帶動下盒子在塑料墊軌滑行,在鏈道上完成其他功能機構動作。可調盒夾能夠與盒子的尺寸相適應,盒子夾持穩定,位置準確,能順利完成各功能機構動作。
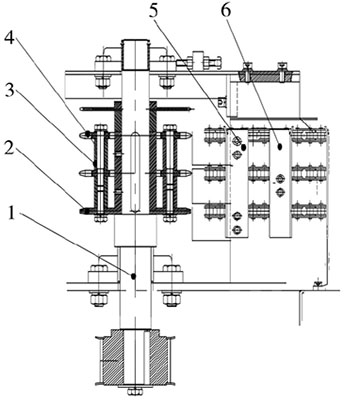
主驅動端由主動軸、主動輪、調節鏈輪、螺紋套、盒夾等組成。盒夾的整體寬度調節可以通過調節中間鏈輪的位置,即調節擋板的位置,鏈輪的安裝與盒夾安裝見圖4,主鏈輪與調節鏈輪裝配方式如下,主鏈輪安裝在主動軸上,用鍵固定,主動鏈輪轂較長,兩個調節鏈輪套在主鏈輪的轂上,用螺紋套間隔開,再用上下螺栓把調節鏈輪與主鏈輪固定在一起。被動端和主動端的區別沒有帶輪,其他基本相同。

圖4 主驅動端結構示意圖
1-主動軸 2-主動鏈輪 3-螺紋套 4-調節鏈輪 5-盒夾 6-前檔板 7-盒夾 8-后擋板
2.2立式裝盒機盒子輸送鏈上各個工位分配
輸送鏈道上有 5個功能單元,順序為: 開上蓋機構、折側蓋機構、套瓶口機構、折側蓋機構,壓蓋機構。5個機構完成裝瓶、套瓶口、封蓋等功能。在套瓶口前面各設一個折側蓋機構,兩側蓋打開利于套瓶口蓋子套在瓶口上,封蓋機構前面設折蓋機構,把兩側蓋子合上后,上蓋折邊受壓插入盒子,裝盒流程如下所示。
2.3 立式裝盒機盒夾的設計
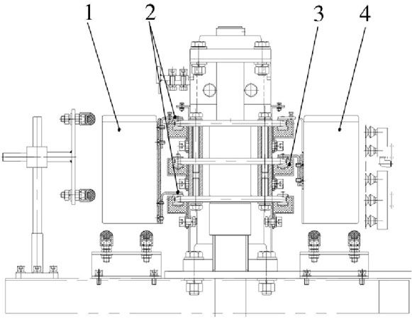
盒夾設計是根據所夾持的盒子形狀確定的,主要由前擋板、后擋板、連接件等組成,盒夾設計見圖5。

圖6 盒夾安裝示意圖
1-盒夾( 推板) 2-推板盒夾架 3-擋板盒夾架 4-盒夾( 擋板)
立式酒盒一般為矩形柱體,根據盒子尺寸來設計鏈道高度以及盒夾的寬度,盒夾前擋板通過盒夾架固定在上、下鏈條上,盒夾后擋板通過盒夾架固定在中間鏈條上。盒夾后擋板設計為可調盒夾,通過調整中間鏈條的鏈輪在傳動軸上的位置,可實現盒夾間距的調節。將固定中間鏈盤的螺栓松開,轉動中間鏈盤即可調整盒夾間距。
2.4立式裝盒機底部同步輸送鏈的設計
輸送鏈在設計的時候,要考慮安裝在鏈條上的盒夾間距能夠調節,主動鏈輪帶有一定長度的凸臺,兩個調節鏈輪安裝在凸臺上,帶凸臺鏈輪與有兩個調節鏈輪之間有螺紋套進行間隔并用螺栓固定。主推盒夾前擋板固定在下鏈條和上鏈條上的盒夾固定架上,盒夾架固定在鏈接的銷軸上,寬度不超過一個鏈節,盒夾后擋板固定在中間鏈條上,與主推盒夾組 成一組盒夾,鏈條的型號根據輸送物進行計算選取。調節鏈輪上有4個均布的環形條孔,用來固定鏈輪與螺紋套螺栓,環形條孔長度根據盒子尺寸變化范圍來設計, 以保證盒夾調整的最大和最小尺寸。圖4中螺紋套,有上下螺紋套,下螺紋套內牙通螺紋,主鏈輪與中間調節鏈輪之間螺栓連接固定,上螺紋隔套為通孔,無螺紋, 在2個調節鏈輪之間螺栓固定,上螺栓比下螺栓長,雙螺栓旋進下螺紋套中以便固定連個調節鏈輪,上下螺栓旋之間留一定的距離,無螺紋設計以便螺栓穿過與下螺 紋套連接,能夠擰緊。如果帶螺紋,將會出現2個調節鏈輪無法擰緊的情況。 在盒夾需要調節時,將上緊固螺栓松動,上邊2個調節鏈輪之間的隔套能夠轉動時,將中間調節鏈輪進行左右旋轉,使盒夾間距能夠進行大小調節,調節好以后,再 把上下鏈條位置調節一致,保證主推盒夾垂直,然后,擰緊上緊固螺栓"即可完成盒夾間距的調整,這種設計減少了盒夾調節時間,增強了輸送鏈道適應性,提高了 生產效率。
3 立式裝盒機輸送鏈的附加功能
輸送鏈采用同步帶傳動,伺服電機驅動。在環形輸送鏈上有幾個不同工位,以實現盒子折側蓋、裝瓶、套瓶口、封上蓋等功能,完成整個盒子包裝。這幾個功 能機構為: 開上蓋機構、折側蓋機 構、套瓶口機構,及封上蓋機構。開上蓋機構由主動軸鏈輪用過鏈條驅動,折蓋機構由被動軸鏈輪通過鏈條驅動,套瓶口機構有主動軸鏈條驅動,封蓋機構由進電機 單獨驅動,有光電檢測開關,與主鏈道實現同步運行。該輸送鏈可以滿足盒底自動成型的白酒裝盒,如果要輸送底部折邊封底的盒子時,在開合機構放入盒子后增加 折邊封底機構,就可以完成酒盒包裝,如紅酒包裝,要求盒子的尺寸在可調整的范圍內即可完成包裝,所以,鏈道適應性較強。
4 立式裝盒機輸送鏈道在設計時應注意的問題
輸送鏈道在包裝機械成套設備中是很關鍵的部件,所有的動作完成需要鏈道輸送,因此,輸送的包裝物不同,盒夾的設計以及調節非常關鍵,根據輸送物的形狀來設計盒夾,目的是保證輸送物平穩的輸送到下一個工位,完成包裝動作,盒夾的間距調節范圍應滿足輸送物的外形尺寸。調節鏈輪的扇形孔的設計尺應考慮調整的范圍。
可調盒夾輸送鏈設計是立式自動裝盒機設計的關鍵,其紙盒可調的機構采用了臥式成熟的鏈條可調技術而來。滿足不同規格的盒子包裝。

